Согласование в Липецке - Липецк
Назад

Как разместить вывеску в Липецке и нужно ли её согласовывать?

В Липецке правила размещения вывесок регламентирует Постановление №1178 от 5 июля 2017 года «Об утверждении Порядка размещения и содержания информационных элементов на территории города Липецка». 

Важно: Каждый год в него вносятся изменения. Следите, чтобы у вас была актуальная версия постановления.

Чаще всего согласовывать вывеску не нужно. Главное – чтобы она соответствовала правилам размещения. Вы можете самостоятельно ознакомиться с правилами размещения вывесок или доверить эту задачу нашему специалисту. Он проконсультирует вас бесплатно.


Какие улицы входят в особую зону?

В Липецке действует зона особого градостроительного значения. В зону включены магистральные улицы города. Фасады зданий, расположенные вдоль «красных» линий застройки данных улицах, формируют панорамы въездов на территорию города Липецка.

ул. Плеханова
ул. Зегеля
ул. Ленина
пл. Революции
пл. Театральная
пл. им. Плеханова
ул. Студеновская
ул. Циолковского
ул. Интернациональная
ул. Фрунзе
ул. Советская
ул. Первомайская
ул. Октябрьская
ул. М. И. Неделина
пр. Мира
пл. Мира

пл. Франценюка И. В.
пл. Петра Великого
ул. Я. А. Берзина
пл. Победы
ул. Московская
ул. 8 Марта
пр. им. 60 лет СССР
ул. им. Генерала Меркулова
пл. Заводская
ул. Гагарина
пр. Победы
ул. Валентины Терешковой
ул. Водопьянова
ул. Космонавтов
ул. З. Космодемьянской
Лебедянское шоссе


Основные правила размещения вывесок


На первом этаже

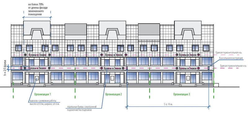
  1. Если на уровне первого этажа на фасаде здания или на козырьках, навесах, объединенных в единую композицию, имеется фриз, то информационная конструкция размещается исключительно на плоскости такого фриза в виде объемных букв и знаков без подложки, или в виде световых коробов с одинаковым фоном, не выше линии перекрытий между первым и вторым этажами. При этом световой короб должен занимать всю высоту соответствующего фриза.

  1. Если на протяжении всего фасада фриза нет, а козырьки и навесы не объединены в единую композицию, можно разместить вывеску над входом или на стене над окнами, в пределах занимаемого помещения. Вывеска должна располагаться не выше линии перекрытий между первым и вторым этажами. Все информационные конструкции должны находится на единой горизонтальной оси и в одной плоскости относительно вертикальной плоскости фасада, на котором они размещены.

  1. Если нет возможности разместить вывеску на единой горизонтальной оси из-за с уклона местности, на которой расположен объект, ее можно установить в пределах козырька, навеса над входом в помещение или в пределах занимаемого помещения. Такие вывески можно размещать только в виде объемных букв и знаков, не выше линии перекрытий между первым и вторым этажами.

На втором этаже

  1. Если фриз на втором этаже располагается на фасаде здания или на козырьках и навесах, объединенных в единую композицию, то вывеска размещается исключительно на плоскости такого фриза. Такая конструкция может быть в виде объемных букв и знаков без подложки, или световых коробов, не выше линии перекрытий между вторым и третьим этажами. Световой короб можно устанавливать только, если он размещается по всей высоте соответствующего фриза, а также по всей длине площади, занимаемой данной организацией.

  1. Если на втором этаже здания не предусмотрен общий фриз на протяжении всего фасада, а козырьки и навесы не объединены в цельную композицию, можно разместить вывеску в пределах занимаемого помещения исключительно в виде объемных букв и знаков без фоновой подложки. Конструкция должна быть не выше линии перекрытий между вторым и третьим этажами. Все вывески могут располагаться только на единой горизонтальной оси и в одной плоскости относительно вертикальной плоскости фасада, на котором они размещены.


На торговых центрах и других общественных зданиях, за исключением объектов встроенных, пристроенных либо встроенно-пристроенных к многоквартирным домам

На глухих стенах здания вывески можно размещать только в виде объемных букв и знаков или в виде фигурных коробов с внутренней подсветкой. Конструкции должны располагаться в границах модульных сеток, предусмотренных для этого.

Сетка должна быть регулярной, допускаются следующие виды сеток:

  • горизонтальная модульная сетка состоит из модулей в один ряд;

  • вертикальная модульная сетка состоит из модулей в один столбец.

На цокольном этаже

Вывески можно размещать над окнами цокольного этажа, но не ниже чем 0,5 м от уровня земли. При этом конструкция не должна выступать от плоскости фасада более чем на 0,10 м.

В витринах

В витринах можно размещать лайтбоксы и планшеты. Они должны располагаться в центре витринного модуля за стеклом на расстоянии не менее 0,2 м от плоскости остекления. Максимальный размер витринных конструкций не должен превышать половины размера остекления витрины (при наличии переплетов (импостов) половины размера остекления в границах импостов по высоте и половины размера остекления в границах импостов по длине.


На нестационарных торговых объектах

Вывески на нестационарных торговых объектах можно размещать исключительно в пределах фризовой части фронтального фасада.

Какие вывески размещать нельзя?

  1. Запрещается размещать вывески, изготовленные из бумаги, картона, фанеры, ткани, в том числе баннерной ткани.
  1. Нельзя размещать вывески на ограждающих конструкциях (заборах, шлагбаумах, ограждениях, перилах), трубопроводах, столбах, деревьях.
  1. Запрещается устанавливать вывески на оконных и дверных проёмах, закрывая и перекрывая их.
  1. На козырьках и навесах можно расположить вывеску только на передней плоскости козырька и навеса в пределах его высоты. Установка на козырьках и навесах сверху не допускается.
  1. Запрещается размещение вывесок выше уровня первого этажа, в том числе на балконах, для встроенно-пристроенных помещений, находящихся на первом этаже многоквартирного дома.
  1. Нельзя устанавливать вывеску на архитектурных деталях фасадов объектов (в том числе на колоннах, пилястрах, орнаментах, лепнине).
  1. Запрещается вертикальный порядок размещения букв на настенной вывеске.
  1. Нельзя размещать вывески друг над другом.
Изображение
При обращении в Telegram возможны задержки ответа в связи с замедлением работы месседжера